Contáctenos completando los siguientes campos:
Ingeniería & Servicios





SERVICIOS
Servicios
Planificación y optimización de proyectos
Desarrollo de ingeniería básica y de detalle
Modelación y simulación numérica
Elaboración de documentación técnica
Elaboración de Estudios de Impacto y Planes de Gestión Ambiental
Gestión y seguimiento de obras




PROYECTOS
Proyectos
Acueducto del Río Colorado, tramo Santa Rosa – General Pico
Segundo Acueducto al Interior del Chaco
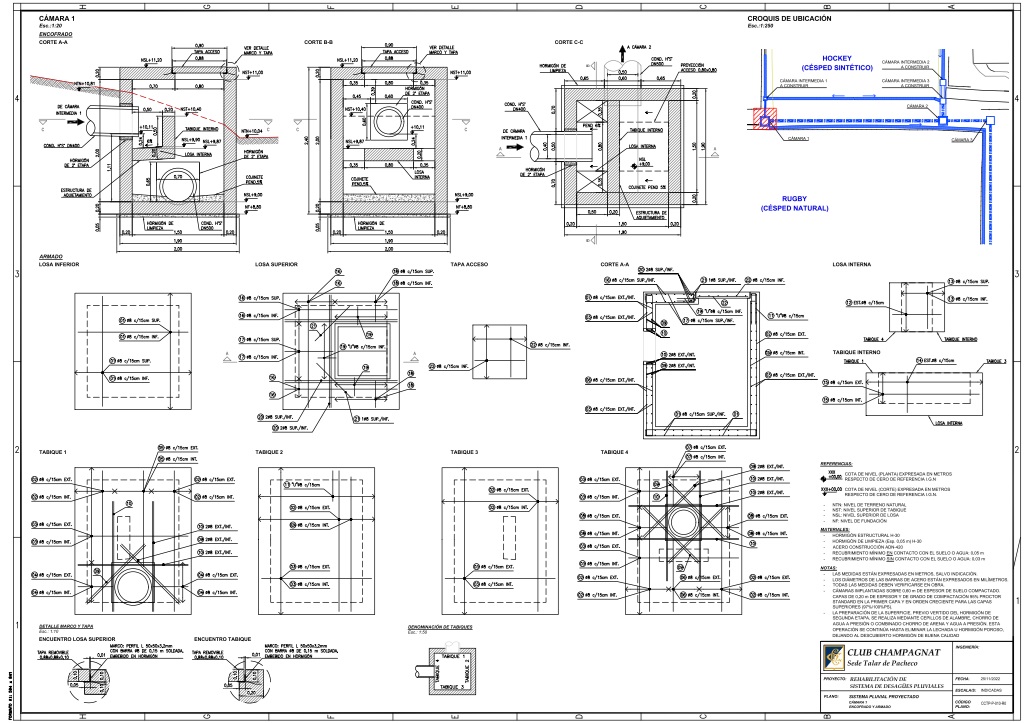
Sistema de Desagües Pluviales del Campo de Deportes del Club Champagnat en Talar de Pacheco
Parque Industrial y Comercial Luján
Verificación estructural de la tubería de PEAD de la IFCI del Depósito de Plaza Logística en Villa Soldati
PADE Hidroeléctrica Futaleufú
Acueducto Pedro Luro - Bahía Blanca
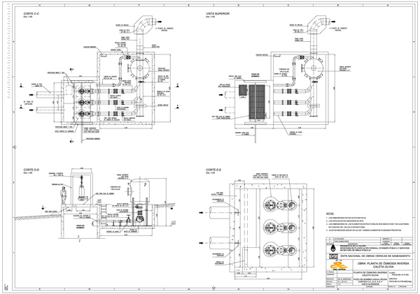
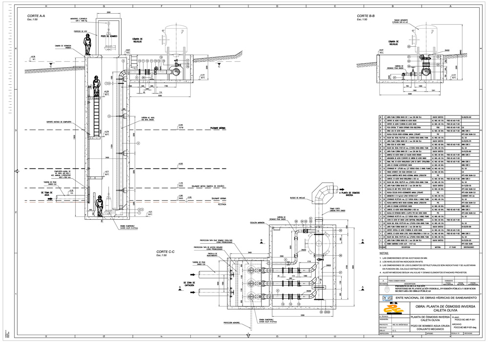
POI en Caleta Olivia
Obra de Toma Granadero Baigorria y Acueducto Gran Rosario
Obras en la desembocadura del Arroyo Medrano



Acueducto del Río Colorado, tramo Santa Rosa – General Pico
Elaboración del Proyecto Ejecutivo e Ingeniería de Detalle de la continuación del acueducto troncal entre las localidades de Santa Rosa y General Pico, alimentando en el recorrido a las localidades de Winifreda, Eduardo Castex, Monte Nievas y Metileo (140 km de conducciones de DN 700 a 900 mm, con presiones entre 6 y 16 bar de PRV y PEAD), cisternas, obras eléctricas complementarias, etc., en la Provincia de La Pampa (Monto del Contrato de la Obra a octubre de 2023: U$S 199.750.000).


Segundo Acueducto al Interior del Chaco
Elaboración del Proyecto Ejecutivo e Ingeniería de Detalle del sistema en su conjunto, incluyendo su obra de toma en el Río Paraná, planta potabilizadora en la localidad de Barranqueras, estaciones de bombeo de agua potable (EB2 a EB9), y conducciones de agua cruda y potable (512 km de conducciones de DN 315 a 1200 mm, con presiones entre 6 y 16 bar de FD, PRFV, PVC y PEAD), obras eléctricas complementarias, etc., que permitirá el abastecimiento de agua potable a aproximadamente 417.000 habitantes en localidades del interior de la Provincia de Chaco como Sáenz Peña, Las Breñas, Charata, Gral. Pinedo, Gral. Capdevilla, Est. Gancedo, Itín, Hermoso Campo, Concepción del Bermejo, Los Frentones, Tres Isletas, etc. (Monto del Contrato de la Obra a septiembre de 2010: U$S 304.350.000).


Sistema de Desagües Pluviales del Campo de Deportes del Club Champagnat en Talar de Pacheco
Elaboración del Proyecto Ejecutivo de las obras componentes del Sistema de Desagües Pluviales del Campo de Deportes del Club en su Sede del Talar de Pacheco en el Partido de Tigre, Provincia de Buenos Aires. El proyecto incluyó entre otras, las siguientes tareas: realización de estudios de campo (relevamiento topográfico y estudios de suelos), desarrollo de la hidrología, diseño hidráulico de los elementos componentes del mismo (obras de captación, conducciones, cámaras, cuenco amortiguador, obras de descarga, etc.), cálculo estructural de obras de arte a ejecutar (cámaras, alcantarillas, muros, obra de descarga y disipación, etc.), cómputo métrico de las obras y confección de un Pliego de Especificaciones Técnicas.


Parque Industrial y Comercial Luján
Elaboración de la Ingeniería necesaria para la gestión y desarrollo técnico y administrativo del emprendimiento inmobiliario con el propósito de implementar un Parque Industrial y Comercial en el Partido de Luján, Provincia de Buenos Aires. Entre otros se llevaron a cabo: el estudio hidrológico e hidráulico con desarrollo del anteproyecto de la red de desagües pluviales del predio, Estudio de Impacto Ambiental (incluyendo relevamiento de los entornos físico y biológico, definición de línea de base ambiental, muestreos de agua y aire, definición de matrices de impacto), los anteproyectos de los sistema de explotación y tratamiento de agua subterránea, de la planta de tratamiento de efluentes, proyectos ejecutivos de las redes de distribución de agua potable y de la red de colectores cloacales, anteproyecto de pavimentos con diseño y dimensionamiento del paquete estructural y diseño de juntas, proyecto de ingeniería eléctrica básica conceptual (líneas de media y baja tensión, subestaciones de distribución, definición de tipos constructivos para los componentes del sistema, etc.), en todos los casos se elaboró la documentación técnica correspondiente (memorias descriptivas y de cálculo, planos y planillas, especificaciones técnicas, cómputos ,etc.).


Verificación estructural de la tubería de PEAD de la IFCI del Depósito de Plaza Logística en Villa Soldati
Verificación estructural de la tubería de PEAD DN315 PN16 SDR 11 en zanja (de acuerdo a las normas AWWA M55) instalada como parte de la IFCI realizada por TIPCI S.A. en el Depósito de la empresa Plaza Logística en Villa Soldati, Ciudad Autónoma de Buenos Aires.
PADE Hidroeléctrica Futaleufú
Elaboración de los Términos de Referencia para la actualización del PADE (Programa de Acción Durante la Emergencia) de la presa Gral. San Martín sobre el río Futaleufú, próxima a la localidad de Trevelin en la Provincia de Chubut, a los efectos cumplir la normativa regulatoria del ORSEP (Organismo Regulador de Seguridad de Presas).


Acueducto Pedro Luro - Bahía Blanca
Elaboración del Anteproyecto y la Documentación Licitatoria del sistema en su conjunto, incluyendo su obra de toma en el Río Colorado, planta potabilizadora, estaciones de bombeo de agua cruda y potable, conducciones de agua cruda y potable (140 km de conducciones de DN 1100 y 1200 mm, con presiones entre 6 y 20 bar de PRVF), cisternas y dispositivos antiariete, obras complementarias para suministro eléctrico del mismo incluyendo una Subestación Transformadora 132/33/13,2 kV – 15/10/15 MVA próxima a la localidad de Médanos, etc., para el abastecimiento de agua potable a aproximadamente 524.000 habitantes en el Gran Bahía Blanca y 8 localidades del Partido de Villarino en el sur de la Provincia de Buenos Aires (Monto del Presupuesto Oficial de la Licitación Pública Internacional 1/17 del Ministerio de Infraestructura y Servicios Públicos de la Provincia de Buenos Aires: U$S 251.700.000).



POI en Caleta Olivia
Elaboración del Proyecto Ejecutivo y de Detalle de las estaciones de bombeo y conducciones de la POI (Planta de Ósmosis Inversa) para abastecer a la Ciudad de Caleta Olivia, en el marco del Proyecto de Repotenciación del Acueducto Lago Musters – Sarmiento – Comodoro Rivadavia – Rada Tilly – Caleta Olivia. Provincias de Chubut y Santa Cruz (Monto del Contrato de la Obra a mayo de 2013: U$S 47.500.000).


Obras en la desembocadura del Arroyo Medrano
Jefatura de Obra y Representación Técnica en las obras de relleno costero y readecuación de la desembocadura del Arroyo Medrano, sobre una extensión de aproximadamente 5,5 ha, con un movimiento de suelo compactado asociado de unos 300.000 m3, ejecución de protecciones de las márgenes en el frente costero sobre el Río de la Plata mediante enrocado (rip-rap), taludes perfilados y protegidos mediante geomantas vegetadas en ambas márgenes del curso del arroyo, y dragado del lecho del mismo, en el marco del Contrato de la empresa Desobstructora Argentina S.A. con el GCBA.


Obra de Toma Granadero Baigorria y Acueducto Gran Rosario
Análisis de los fenómenos transitorios en la conducción de agua cruda de la obra de toma sobre el río Paraná, análisis estructural del funcionamiento de tuberías de agua potable de PEAD (DN 560, 710 y 1200 mm clases 4, 5, 6, y 10 bar) a colocar en el Acueducto Gran Rosario, en el marco del Anteproyecto Licitatorio y posteriormente del Proyecto Ejecutivo e Ingeniería de Detalle de la Planta Potabilizadora de Granadero Baigorria y del Acueducto Gran Rosario – Etapa I, Provincia de Santa Fe.


Experiencia y confiabilidad al servicio de nuestros clientes en la realización de proyectos y obras de ingeniería.
Comitentes
Aguas Santafesinas S.A.
Centro Construcciones S.A.
C&E Construcciones S.A.
CPC S.A.
Desobstructora Argentina S.A.
DiPAC
Edeca S.A.
Hidroeléctrica Futaleufú S.A.
Milicic S.A.
Panedile Argentina S.A.I.C.F. e I.
Peitel S.A.
Rovella Carranza S.A.
Siproi S.R.L.
Supercemento S.A.I.C.
TIPCI S.A.
Partners
AOSA S.A.
Besna Civil S.A.
Ergon Ingeniería y Servicios
Giordana Ingeniería S.A.
HA2m S.A.
Empresa
Aróstegui y Asociados Consultores se conforma en 2017 y sin embargo cuenta con el respaldo de 30 años de experiencia profesional en la ejecución de proyectos y obras de ingeniería. Nuestro equipo interdisciplinario de profesionales asociados ha participado en el desarrollo de una gran variedad y cantidad de proyectos de infraestructura, lo que nos confiere la experiencia necesaria para atender adecuadamente las más diversas necesidades de nuestros clientes, tanto en las etapas preliminares de estudios de campo y proyectos básicos, en las posteriores correspondientes a proyectos ejecutivos, ingeniería de detalle y licitatoria, así como en la supervisión e inspección de obras de ingeniería.